照片 照片

南港軟體園區-收租財神爺

地點 icon
臺北市,南港區,三重路
(軟體園區二期)
打開地圖
20800萬
售價
1廳
格局
145.5坪
坪數

店面

47

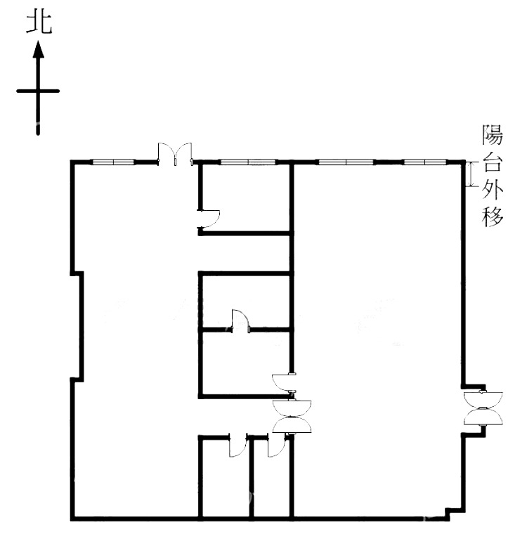
格局平面圖

坪數說明

建物登記 145.5坪
權狀室內+陽台 86.5 坪
土地坪數 31.4坪
公設比 21%

詳細說明

樓層/總樓層 1樓/16樓
陽台 個陽台
房子屋齡 26年
座落臨路 12米巷道
停車方式 平面車位(產權)
房子坐向 向東
採光面 採光2 面
社區名稱 icon 軟體園區二期
管理費 18596元

住宅公設

垃圾集中處 社區守衛
物業管理 會議室
視廳室 交誼廳
接待廳 中庭花園
前庭花園

區域機能

近夜市 近學校
近百貨公司 近購物賣場
近醫療機構 近大眾交通
近傳統市場 近便利商店
近公園綠地

【潔淨穩壓連續電力供應系統】
69KV超高壓供應園區電力
CPS連續電力供應系統(4000 KVA)
─國內只有台北榮總、台北中正文化中心使用類似系統容量僅300 KVA 。
─園區廠商不必再添置不斷電設備(UPS) 。
─不必花錢購買放置UPS蓄電池空間 。
─無UPS蓄電池所造成之汙染公害可提供上萬台電腦連續供電 。
─台電停止供電後,園區備用電源亦可提供園區40~50%。
─空調供應量,讓廠商正常作業
提供穩壓、濾波之潔淨電源,確保供電品質及保護
廠商硬體設備

【光纖通訊網路】
行政院計劃以本園區為國家資訊基礎建設(NII)電信示範區。
由中華電信設置窗口,為園區客戶提供最完整服務。
本園區通信主幹纜佈設採PVC無遮蔽電話電纜、12芯單模及多模光纜、75歐姆高頻同軸電纜,提供客戶高品質高穩定度及寬頻且符合經濟效益的完整通訊資訊服務。

【置換式空氣調節系統】
採用美製YORK牌高效能冰水主機,配合B.A.C.儲冰系統及 冷卻水塔,於離峰製冰供尖峰時使用,達節省能源之效。
園區中央監控控制點達三萬餘點,工作站溫度自動調控制, 保持最舒適辦公環境,亦可節省能源。
辦公

其他好房推薦

南港軟體園區-收租財神爺

房子地點
臺北市,南港區,三重路
(軟體園區二期)

價格與類型 20800萬元 / 店面

請說明在「MY屋」看到的物件內容
這樣仲介才不會介紹錯誤喔!
需求條件

      自行填寫價格區間
      最少/萬 - 最多/萬
      特色標籤
        自行填寫價格區間
        最少/萬 - 最多/萬

        手機掃描 QR Code
        瀏覽此物件